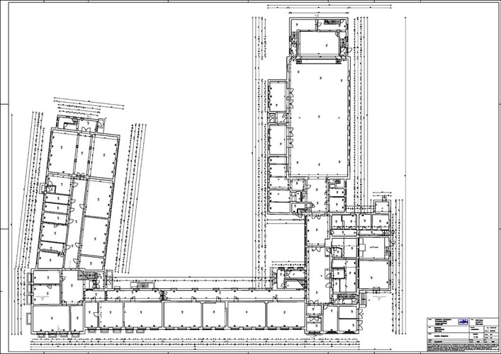
Gebäudevermessung
Grundrisse - Schnitte - Ansichten - Flächenberechnungen

Die Bestandsaufnahme erfolgt reflektorlos in 3D mit allen
Verformungen, Umbauspuren und Materialwechseln,
Verzeichnung der Türhöhen, Brüstungs-, Scheitel- und
Kämpferhöhen, lichte Maße der Fenster und Türen,
Kennzeichnung der Art der Überwölbung und Bestimmung
von Höhenmarken je Raum.